REQUEST A TOUR If you would like to see this home without being there in person, select the "Virtual Tour" option and your agent will contact you to discuss available opportunities.
In-PersonVirtual Tour

-
Est. payment /mo
Active
504 Cottonwood AVE #204 Coquitlam, BC V3J 2R5
UPDATED:
Key Details
Property Type Commercial
Sub Type Office
Listing Status Active
Purchase Type Lease
MLS Listing ID C8064072
Year Built 1979
Property Sub-Type Office
Property Description
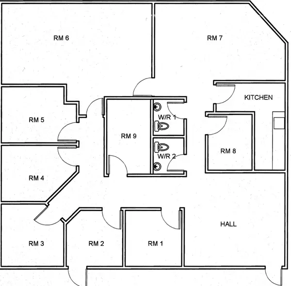
Looking for a spacious and well-equipped office for your growing business? This 2,184 sq. ft. office offers a perfect blend of private and collaborative spaces, ideal for a variety of professional needs 7 good-sized private offices: Perfect for individual workspaces or small teams. 2 large boardrooms: Ideal for meetings, presentations, and team collaborations. Kitchen: Fully equipped, perfect for preparing meals or quick coffee breaks. 2 bathrooms: Convenient and private for staff and clients. Located in a prime business area, this office space is close to public transportation, restaurants, and amenities, providing an ideal environment for productivity and professional growth.
Location
Province BC
Community Coquitlam West
Area Coquitlam
Zoning C-2
Building
Story 2
Others
Ownership Freehold




